西慕案例 | CAN RAS, MALLORCA
公司新闻2021-12-17 15:40:38


西班牙著名极简建筑师Fran Silvestre创办的建筑设计事务所FRAN SILVESTRE ARQUITECTOS,由多学科的专业人士组成,是全球鼎鼎有名的先锋建筑实践者,他们将当代的唯美意境与建筑实践相结合,创造出许多有代表性的极简作品。

消失在大自然中,这就是在距离地中海沿岸几米的马略卡岛上的这座房子的概念。在天地自然之中,互相融入又互不打扰,仿佛随时可以消失在自然之中。

住宅由一组朝一个方向移动的建筑体块组成,外部空间巧妙的化作露台,并且赋予空间不同的功能与形态。

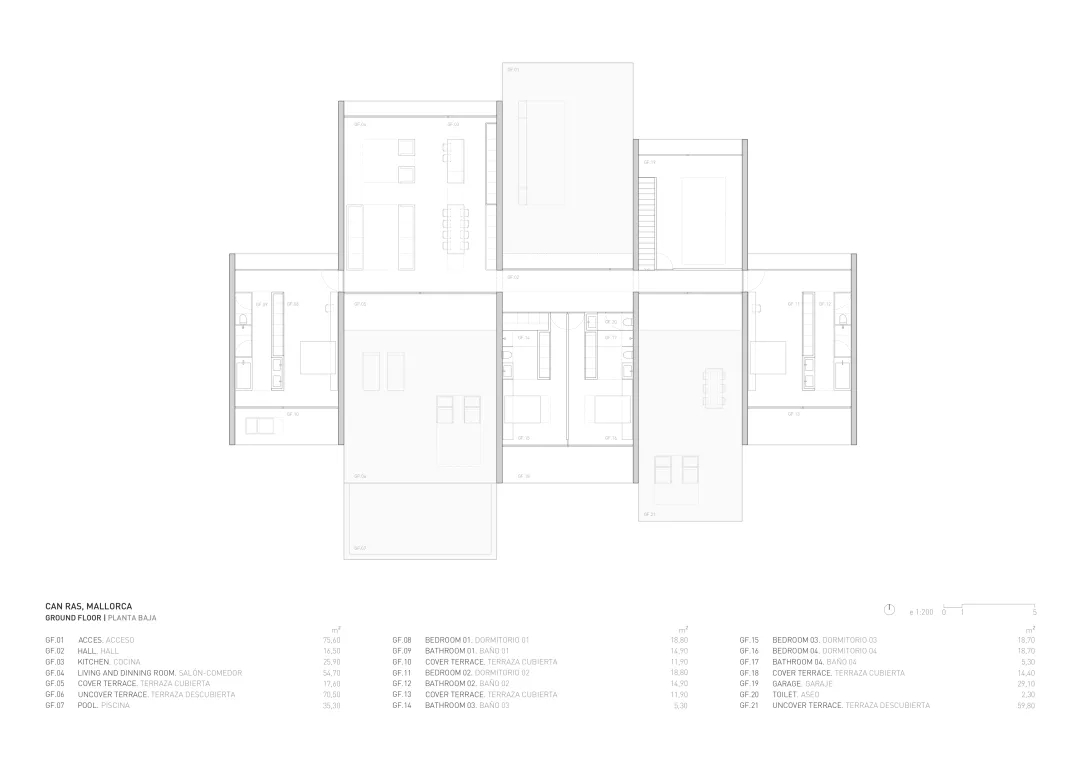
一楼的布局最大限度地利用了与外部的关系,在保证无敌落地大窗户海景的同时,并通过形成巨大外部露台的屋檐免受太阳的直射。

这座房子是用天然材料构思的,但采用当前技术建造,注重经济性、精确性和连续性。所以房屋大面积使用微水泥打造,为了保证整体的统一与连续性。

建筑还特别强调用户体验,提供享受景观的空间和具有必要隐私的户外空间。不仅可以观赏到窗外的风景,还确保了住户的隐私性,隐蔽而又不影响采光。

消失在自然中的建筑,仿佛与自然浑然一体,光影与建筑浑然天成的融合在天地之间,FranSilvestre Arquitectos设计了一方纯粹的极简建筑,并通过西慕艺术水泥的加持显得与自然更加和谐相融。





项目信息
—
项目名称: CAN RAS, MALLORCA
项目类型:新建筑
项目地址: 马略卡岛
建筑师: FRAN SILVESTRE ARQUITECTOS


