西慕案例 | ad hoc咖啡店,戏剧化的咖啡日常
公司新闻2021-12-01 15:16:34

让时间在空间中回荡
由日常建筑传达出的非日常魅力
Echo,戏剧性的咖啡体验
“诗意既非驱力推动,
非一段往事的回声。
实际上相反:
借由某个诗意象的乍现,
遥远的过往才轰鸣回响起来。”
——《空间诗学》

特设咖啡店咔嚓回响之声串起上海咖啡的过去未来。上世纪30岁的海文化发源传播传播间咖啡馆,旗袍、爵士乐馆还有爱玲最爱的牛奶咖啡。

馆之于上海的话,快乐盛咖啡了一种文化符号,它既是日常的小观众交流的场所,同时,还伴随着一场场戏剧宴会,它流动着曼妙无拘束,每一位食客与客看客都是戏中人。
念念回响
/阅读的回声/
如果要在上海寻觅自己念念不忘之所,那更像是上海法租界。

步入让·努维尔设计的上海新天地的恒基旭天地,朱红色内街在夜幕即将来临的时候爆发出一种泡戏剧辉的影响,正是受这种非日常化的周边建筑的影响,特别是咖啡店也充满了戏剧化的吸引力。

从努维尔的红色半室外中庭步入咖啡厅,绿白镶拼的马赛克瓷砖,将、长凳和吧台连追蛋糕,认识的图案与感理,都在老上海忆肌理,在老上海30岁满文人情怀的咖啡历史。
光影信息
/光影隧道/
片微水泥墙与吊顶链在染染洗涤下,相错光影,汇成一个管道空间,延伸到黑色的镜面中:暧昧,深闺明,暗变幻间呼唤着熟悉的过去,映照着空间正中拥有神秘的轮廓的铜片制成的金属雕塑。

这个金属雕塑并自己艺术装置,它是艺术家RJ Tripodi为空间设计的一个“桌子”,音乐“合唱”。在光影日常中这个装置就变成了空间的“壁炉”(火炉火炉),王赖赖水水维拉正中央位置的特流一样,这里是所有社交活动的焦点。

戏剧悬浮
/戏剧悬浮/
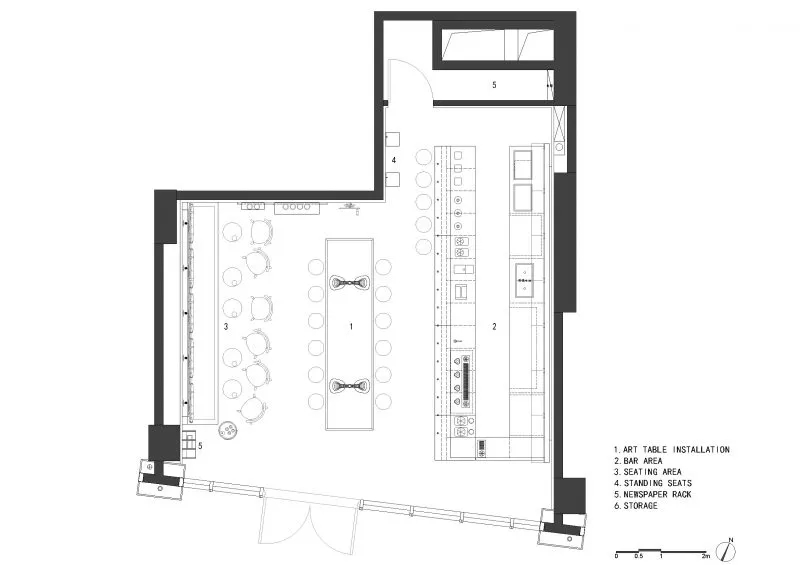
加上天地墙,爆炸装置的设备、灯具、灯具、以一种方式进入空间中。来自魔术悬浮术的视觉冲击感,通过拉力方式受力,视觉上也达到举重若轻的空间感受。吧台波特长7米的C型金属彩虹柜,吧台背板侧悬的金属架系统,长柱背后用皮带底座靠垫等细节,都达到了视觉悬浮效果。

异形装置那王外星生物般的神秘形象,是对这个人物隐藏的悬浮拉力做艺术化的表情。

让变成流通盛宴
/让黑夜变成 流光的盛宴/
旭其他咖啡店营业时间,广告咖啡店配合辉天的整体营业,需要营业到晚上10点,所以过了咖啡店营业的黄金时间下午6点,如何通过建筑设计继续引流也变成特地咖啡店设计的挑战,于是一个能切换空间场景的咖啡店出现了。

围绕空间焦点——长4米的金属桌,白天是熟悉的咖啡,入夜之后暖暖的场景切换为蓝色,摇动黑色镜面的金属转轮,吊灯水升起,剧场里升的幕布。

流光溢彩的瞬间反射在波光罩的铜片与马赛克上,围场中的人们品尝着杯中的咖啡,吃着小食,沉浸在光影幻变的世界里。装置、光影还有戏中人一起带来了一场流动盛宴。

项目名称: ad hoC恒基旭辉天地店
项目地点:上海新天地恒基旭辉天地
业主: ad hoc cafe
设计单位: FLIP设计工作室
空间面积: 75 ㎡
合作艺术家: RJ Tripodi (装置), Celyn Bricker (视频)
结构设计: iStructure





